
When Bay Area homeowners approach me about a kitchen remodel, the conversation almost always begins in the same place: countertops, cabinets, maybe a tile they spotted on Instagram. And I understand why, finishes are beautiful, tactile, and fun to choose. However, I prefer to start our conversation elsewhere.
First and foremost? Layout. It’s the foundation for a functional kitchen and sets the stage for all of those lovely finishes to shine.
Every day, homeowners invest heavily into gorgeous kitchens that look exceptional, but function poorly. The cabinetry is custom. The materials are high-end. But the refrigerator is tucked out of the way, there's nowhere logical to unload groceries, and space doesn’t support more than one person comfortably
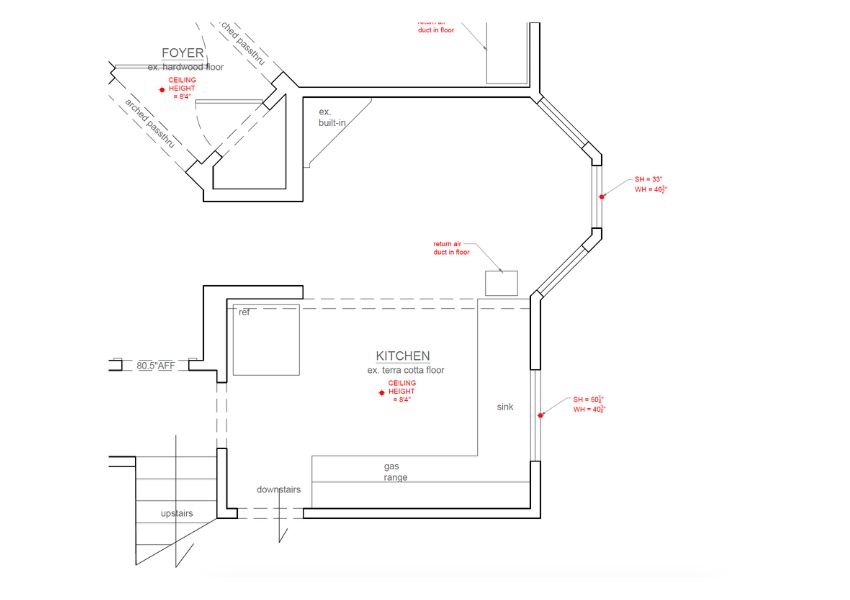
These are layout problems. And they’re far more difficult to correct after the fact. In many Bay Area homes, especially where so many homes were built in the early-to-mid 20th century, the kitchen was often designed as a service room: small, enclosed, and separated from the rest of the house. These layouts do not suit the way we live today, and the gap between the original design and modern life is often the real challenge a kitchen remodel needs to resolve first...





Here's what I tell every client: finishes have a lifespan. Finishes evolve. Hardware is replaced, surfaces are updated, and colors shift over time.
Layout does not. Where your sink sits relative to your range, whether your kitchen opens to the living space or closes it off, that's structural and something you'll live with for twenty or thirty years.
When I talk about layout, I'm talking about how a kitchen functions as a space. The position of appliances, the relationship between rooms, and the way people move through a space are structural decisions. They shape how the kitchen functions for decades.



A well-designed layout supports multiple users, creates intuitive flow, and allows the kitchen to serve as both a working space and a gathering one. You know where things go, and getting to them is easy. A poor layout interrupts daily routines, and that’s something a material upgrade cannot resolve.
This is where I see the most significant challenges, and the most rewarding design opportunities. Many of the homes I work on in San Francisco, Oakland, Alameda, and Marin were built when kitchens were meant to be kept out of sight. They're enclosed. They're small by today's standards. The connection to the dining room, if there is one, is usually through a narrow doorway. Natural light is limited. Storage was an afterthought.
None of that is unfixable. But it does require thinking carefully about what the space needs to become before anyone starts talking about what it should look like.
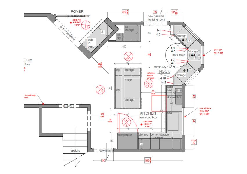
Sometimes improving layout is a matter of refinement, adjusting appliance placement or rethinking storage. But often, the most meaningful improvements come from more substantial changes: opening a wall to connect the kitchen to the living or dining area, relocating a doorway to improve circulation, repositioning appliances to create a more functional workflow, or adding a window to bring in the natural light the room desperately needs.



These decisions are architectural and require a design-led approach. They require a clear understanding of the structure of the home, the relationship between rooms, and what's possible within the constraints of the existing architecture. This matters in any home, but it's especially important in the older, architecturally distinct houses that define so much of the Bay Area. These homes have character and history. A well-designed kitchen remodel honors that. It doesn't fight the architecture, it works with it, and it helps the whole home feel more coherent and livable.
This is exactly where design leadership matters most, and having an architect or interior architect involved from the beginning makes the difference between a renovation that transforms a home and one that just refreshes it.
This is the part I genuinely enjoy. Once the layout is resolved and the spaces function effectively, choosing finishes becomes what it should be, a creative, enjoyable process. Cabinetry, countertops, lighting, hardware can be chosen with clarity, because they’re supporting a well-defined plan, not compensating for one. Finishes bring beauty, warmth, texture and personality to a kitchen. They shape how the space feels. But they are not what makes it work.

A kitchen that functions well will always feel better to live in than one that simply looks good. The role of finishes is to elevate a space that performs well, never to carry one that doesn’t. Final Words - Start with How the Kitchen Works
A successful kitchen remodel begins with a clear understanding of how the space needs to function, for daily life, for cooking, for gathering, for the particular way your household moves through your home. It should fit the architecture of the house and support the flow between rooms.
When that foundation is in place, everything else follows naturally. The finishes do not drive the decisions; they follow them.
If you're thinking about a kitchen remodel for your Bay Area home and want to start the conversation in the right place, I'd love to hear about your space. It’s worth having the conversation early and I'm always happy to talk through what's possible. Reach out here.
Most kitchen remodels focus on finishes first. But what truly shapes how a kitchen feels and functions day to day is the layout. This short assessment is designed to help you step back and evaluate how your kitchen actually functions today and identify where the layout may be limiting your daily life.